- 122
2D Floor Plan Development by Yantram Architectural Design Studio, Pearland - Texas
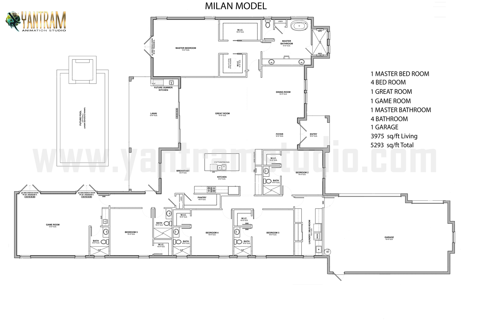
プロジェクト:寸法のある2Dフロアプラン
クライアント:982。ジェフ
場所:テキサス州パーランド
2D平面図は、プロパティまたはスペースのレイアウトを上から表示する一種の図です。多くの場合、壁や部屋のレイアウトに加えて、窓、ドア、階段などの固定設備や家具が表示されます。 2Dは、平面図が「フラット」な図面であり、3Dレンダリングのような遠近法や奥行きがないことを意味します。寸法のある2Dフロアプランは、クライアントが正確なスペースと部屋全体の寸法について正確に把握するのに非常に役立ちます。 2Dフロアプランレイアウトは、一般的な寸法、居住者のニーズ、ライフスタイル、個人的な好みに応じて、それぞれの部屋に適切な領域を与えることで、スペースを計画するのに役立ちます。建築および建築工学では、2D平面図は、構造の1つのレベルでの部屋、スペース、交通パターン、およびその他の物理的特徴の間の関係を上から見た縮尺図です。寸法は通常、部屋のサイズと壁の長さを指定するために壁の間に描かれます。
詳細:https://www.yantramstudio.com/2d-floor-plan.html
クライアント:982。ジェフ
場所:テキサス州パーランド
2D平面図は、プロパティまたはスペースのレイアウトを上から表示する一種の図です。多くの場合、壁や部屋のレイアウトに加えて、窓、ドア、階段などの固定設備や家具が表示されます。 2Dは、平面図が「フラット」な図面であり、3Dレンダリングのような遠近法や奥行きがないことを意味します。寸法のある2Dフロアプランは、クライアントが正確なスペースと部屋全体の寸法について正確に把握するのに非常に役立ちます。 2Dフロアプランレイアウトは、一般的な寸法、居住者のニーズ、ライフスタイル、個人的な好みに応じて、それぞれの部屋に適切な領域を与えることで、スペースを計画するのに役立ちます。建築および建築工学では、2D平面図は、構造の1つのレベルでの部屋、スペース、交通パターン、およびその他の物理的特徴の間の関係を上から見た縮尺図です。寸法は通常、部屋のサイズと壁の長さを指定するために壁の間に描かれます。
詳細:https://www.yantramstudio.com/2d-floor-plan.html
