展示会場について
- 会場:1Day Reform Lab名古屋店(愛知県名古屋市熱田区桜田町19-21)
山田商会本社1階にある、最新の給湯器・コンロ・トイレなど、多彩な住宅設備機器を実際に見て、触れて、比較することのできるショールームです。(JR金山駅より徒歩10分)
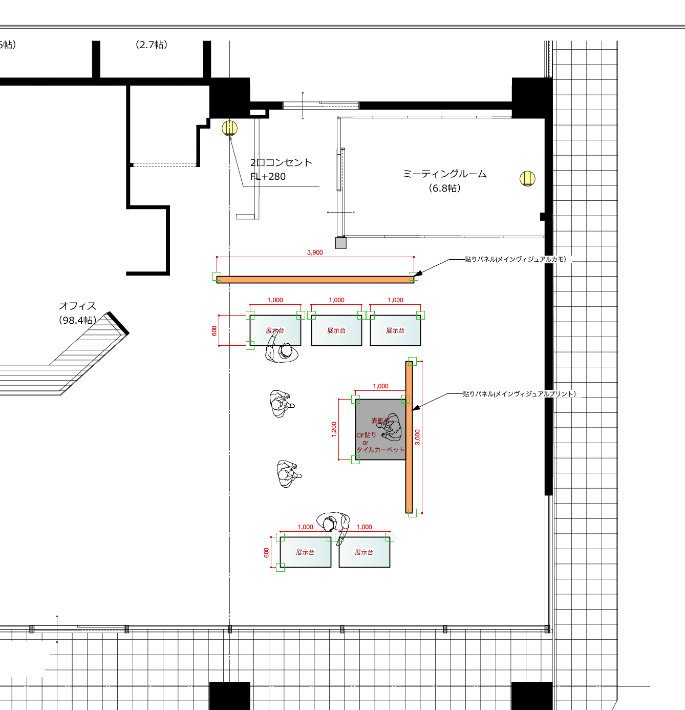
展示期間中は、ショールームとしての機能も保ったまま、エリアを分けてグループ展を開催します。 ショールームにいらっしゃる幅広い世代の方にも、展示をご覧いただくことができます。
展示範囲
展示台を使い、自由に作品を展示できます(専用展示什器も任意で追加できます)。また、スケッチ、失敗作、モックアップなど、作品をつくるまでの試行錯誤を一緒に展示することも歓迎します。

- 展示台:横900mm×縦600mm×高さ100mm~720mm

※展示物の高さは、展示物方法など相談の上で調整可能とします。
※以下の図の展示什器の配置は現時点での仮案となります。ファイナリスト選出後に、各種調整の上最終決定となります。
※映像機器や展示台以外の什器などを含む、展⽰の際に必要な備品は応募者でご準備ください。
重量
- 耐荷重(テーブル) 50kgまで
作品サイズ
搬入出口より搬入可能であること。 位置は図面にて確認してください。
- 搬入口: 自動ドア有効開口 W1830×H1980
電源
展示の際に電源を使用する場合は、応募フォームにて使用有無をお知らせください。
注意事項
- ファイナリストに選出された方は、必ず展示を行ってください。
- プロトタイプも応募対象ですが、実現可能な作品のみが審査対象となります。
- 規定サイズ内であっても、危険物、臭気、腐敗の恐れのある作品の出品は不可とします。
- また、発音、発光、発熱、可燃性の高いマッチ等、他の作品に及ぼす影響が大きい作品については、他のファイナリストと協議を行う場合があります。
- AI(Artificial Intelligence)が生成したデータやイメージを使用する場合は、応募フォームの「説明文」の項目内に明記してください。
- 展示期間中の展示に耐えられ、また、鑑賞者が作品に触れたり、操作したりするような作品は、それに耐えられる作品制作・設置を行ってください。
- 作品の耐久性不足等による破損等には、必ず応募者が現地にて補修してください(応募者負担)。
- 天井、床材等を損傷する恐れのある釘等金物の使用は不可です。
- 照明器具等は応募者で用意してください。展示エリア内の電気配線については、応募者と主催者との協議において決定します。
- 映像作品の場合のプロジェクター・PC・DVD プレーヤー・スピーカー・暗幕等上映に必要な機器・設備は応募者で用意してください。
- 会場内では他の作品の音、振動や照明の影響を受ける場合がありますので予めご了承ください。
- 簡単な電源のON/OFF 等は主催者が行いますが、緊急時を除き原則機器の操作や作業等は行いません。
- 応募作品の展示・取扱いに関しては最善の注意を払いますが、自然災害・その他の不測の事態による損害に関して、主催者は一切の責任を負いません。
- 展示スペースにおいて、商行為・営利目的の広告・宣伝は一切禁止します。
- 展示作品の撤去・廃棄物処理は応募者自らが費用負担の上、責任をもって行ってください。
- 搬入・搬出は応募者で行ってください。
- ファイナリスト選出後、業務委託契約を結ぶ必要があります。
- 作品タイトル、作品紹介、プロフィール文、プロフィール写真の原稿は、ファイナリスト決定後、後日指定する内容をお送りください。また、フォーマットは運営側で準備します。
- 展示が原因で作品に何らかの損害が発生した場合にも、運営側は一切の責任を負いません。
- 展示位置は、開催趣旨および法令や安全対策などの諸事情を踏まえ、原則、運営側で決定します